PUMP-THRU BARRIER
SPI Pump-Thru barriers offer
versatile applications
Solidification Products International’s patented Pump-Thru-Barriers are a popular item because of their versatility and durability in the field. Refinements and improvements are made on an ongoing basis and new features are added to improve efficiency and performance. Pump-thru barriers remove hydrocarbons to non-detectable levels.
The blue cylindrical pre-filter, a sump pump with a heating ring and the new custom-made heating blanket, are all new additions to the Pump-Thru Barriers' overall versatility. The pre-filter canister itself has dramatically improved the longevity of the internal dirt filters built into the units.
Ideal for:
|
|
PROVIDING 100% EFFECTIVE
FUEL AND OIL PROTECTION
SPI developed the portable Pump-Thru-Barrier for containment areas that require rapid removal of high volumes of rainwater while disallowing any oil sheen or spill to be released. In the event of a major spill, the unit completely seals off to contain the spill.
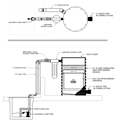
SPI’s Pump-Thru Barrier system incorporates the use of a sump pump in conjunction with our patented media for efficient hydrocarbon removal. Rainwater is pumped into the Pump-Thru-Barrier and passively drains through the SPI Media, removing any oil sheen whatsoever.
The Pump-Thru-Barrier has internal dirt filters that clean the rainwater before it reaches the Petro-Barrier media. In the event of a major oil spill, the Pump-Thru-Barrier instantly shuts off all flow and prevents any oil from reaching the surrounding environment.
All oils are diverted to a return system that flows back into the containment area after the system has shut down. The overflow is directed back into the containment area until the operator shuts down the sump pump. This is a system that can be trailer-mounted to allow companies to pump out several areas in a number of locations.
WORKING WITH THE ENVIRONMENT
During a rainstorm, the rainwater is pumped into the Portable Pump-Thru Barrier Unit, which incorporates the use of dirt and oil sheen filters that prevent the Petro-Barrier from clogging. These filters are easily removed and replaced in minutes.
Cold Weather Operation of the
Pump-Thru-Barrier
For colder climates, the Pump-Thru-Barriers are outfitted with thermal heating blankets that protect both the unit housing and the external water filter. We have also added an additional sump pump pre-filter that can be cleaned as needed.
Our custom heating blankets have been tested for temperatures below -40 degrees in extreme conditions. The following test was conducted at the SPI facility with temperatures of -12 F and not rising above 32 F for eight straight days.
The blankets were installed on the Pump-Thru-Barrier housing and external water filter in December 2013 and removed on April 1, 2014. Installed in the water vessel is a water heater that kept the water free of ice throughout the time period. The internal temperature inside the Pump-Thru Unit was a warm 68 degrees.
NEED PUMP-THRU BARRIERS?
BETTER CONTAINMENT WITH
THE PUMP-THRU BARRIER
The portable Pump-Thru Barrier can be installed in any containment area where you need to be sure no oil sheen is ever discharged from your facility.
The portable Pump-Thru Barrier enables companies to install an effective oil spill containment system after the fact, which prevents pooling water and many hours of manual pumping.
If an oil sheen is visible, it is necessary to treat the water on-site or have a tank truck haul the water off for treatment somewhere else. Worse yet, if the water is not pumped out and an oil spill occurs, will the system have the holding capacity it needs?
Pump-Thru Barriers remove oil sheen to less than 3 ppm, but in most cases to non-detectable levels. No other system works 24/7/365 days a year providing the protection that SPI’s Pump-Thru Barrier delivers.
